長谷工グループ企業である細田工務店が、
長年培ってきた技術力と実績の集大成として
木造邸宅の新領域のクオリティを提示する。
壁一面の窓が輝かしい、品格ある洗練美。
「大開口×大空間」の快適性に加えて耐震性をも両立。
木造邸宅の新たなる領域を切り開く
プロジェクトがいま始動のときを迎える。
[ GRAND RESULt/グランリザルト ]とは「大いなる成果」の意。
家づくりのエキスパートである
細田工務店のノウハウの集大成として誕生した、
高水準な木造邸宅を意味
するブランドネームです。
※GRAND RESULt (グランリザルト) は株式会社細田工務店が商標登録出願中のブランドネームです。

「大開口×大空間」+「高耐震」。
新領域の開放性を技術力で実現。

- 大開口窓と大胆な吹抜空間による優れた開放感
- 耐震等級3を実現した構造強度
- 高級感と味わいがある
天然無垢床材・天然木サッシを採用 - 木材の美しさを存分に活かした内外装デザイン

エコロジカルでサスティナブル。
防災機能にも配慮した次世代型邸宅。

- 高気密・高断熱仕様+ZEH仕様(※1)により
経済的な創エネ・省エネ効果を発揮 - スマートフォンやタブレットからの
家電・設備の操作が便利なIoT住宅 - 太陽光やグリーンといった自然との共生を
意識したバイオフィリックデザインの採用 - 蓄電池、非常用貯水タンクやかまどスツールなど
充実の防災アイテム
※1:当モデルハウスでZEH基準をみたすためには、太陽光パネルの追加設置、及び冷房期の平均日射熱取得率(ηAC値)を別途満たす必要があります。

暮らしを豊かに、楽しく、そして快適に。
時代とともに住空間設計も進化する。

- Withキッチン、ダウンリビングで
自然に家族がつながる - 思い思いに過ごせるプライベートリビング、
Nook(ヌック) - 家事を楽しむウォッシュサロン&ワークスペース
- 美しく収納するウォークスルールーム、
コーディネートルーム、ソライオ - グリーンテラスやプライベートバルコニーなど、
安らぎの場所をご用意
PLAN
家族一人ひとりが自分スタイルの
暮らしを満喫できる、
多彩な新提案が盛り込まれた住空間設計。
大胆な吹抜を設けた1階のリビングに加えて、2階にはプライベートリビングも。
個性的な空間や、家事の効率化、多彩な収納アイデアなど、新提案も随所に採用されて快適さと楽しさにあふれた暮らしを存分に満喫していただける住空間設計です。
DATA
- 延床面積 : 226.21m2(約68.42坪)
- 建築面積 : 133.67m2(約40.43坪)
- 敷地面積 : 223.57m2(約67.26坪)
- 1階面積 : 122.42m2(約37.03坪)
- 2階面積 : 103.79m2(約31.39坪)
- ソライオ面積 : 13.24m2(約4.00坪)
1階: くつろぎと日常の家事を、両立させたWithキッチン
2階: 休日や夜の穏やかな時間を、思い思いに過ごすプライベートリビング
1階: くつろぎと日常の家事を、両立させたWithキッチン
1階- 1
エントランスホール
- 石貼りの壁が上質な雰囲気を演出。靴の着脱に便利なベンチつき。

- 2
ただいま洗面&トイレ
- 帰宅後すぐに手洗いができる洗面台と、お出かけの前の使用にも便利なトイレ。

- 3
ダウンリビング
- 段差を設けることで緩やかに仕切られ、開放的な吹抜でありつつ、くつろげる空間。

- 4
Withキッチン
- 食事の場としてだけでなく、家族が集い時間を共有する住まいのハブとなる空間。

- 5
ウォッシュサロン&ワークスペース
- 洗濯から乾燥、アイロン、収納までワンストップで行える空間。室内物干しも完備。

- 6
ストックルーム
- 趣味のアウトドアグッズの収納やディスプレイができる空間。
- 7
ウォークスルークローク
- 靴をはいたまま通り抜けできる収納スペース。下足入れだけでなく、コート掛けも完備。

- 8
パウダールーム・バスコート
- たっぷりのリネン収納のある空間。バスコートのある浴室で優雅なお風呂時間を。

- 9
Nook
- 家族の気配を感じながらも一人になれる、隠れ家のようなスペース。

安心の防災アイテム
- 16
蓄電池
- 蓄電池で電気の自給自足を実現。災害時も「電気」のある生活を確保できます。

- 17
非常用貯水タンク
- 災害や断水時に「飲料水・生活水」が確保できます。

- 18
かまどスツール
- 普段はスツールとして、災害時は炊き出しや暖をとれる「かまど」として利用可能。

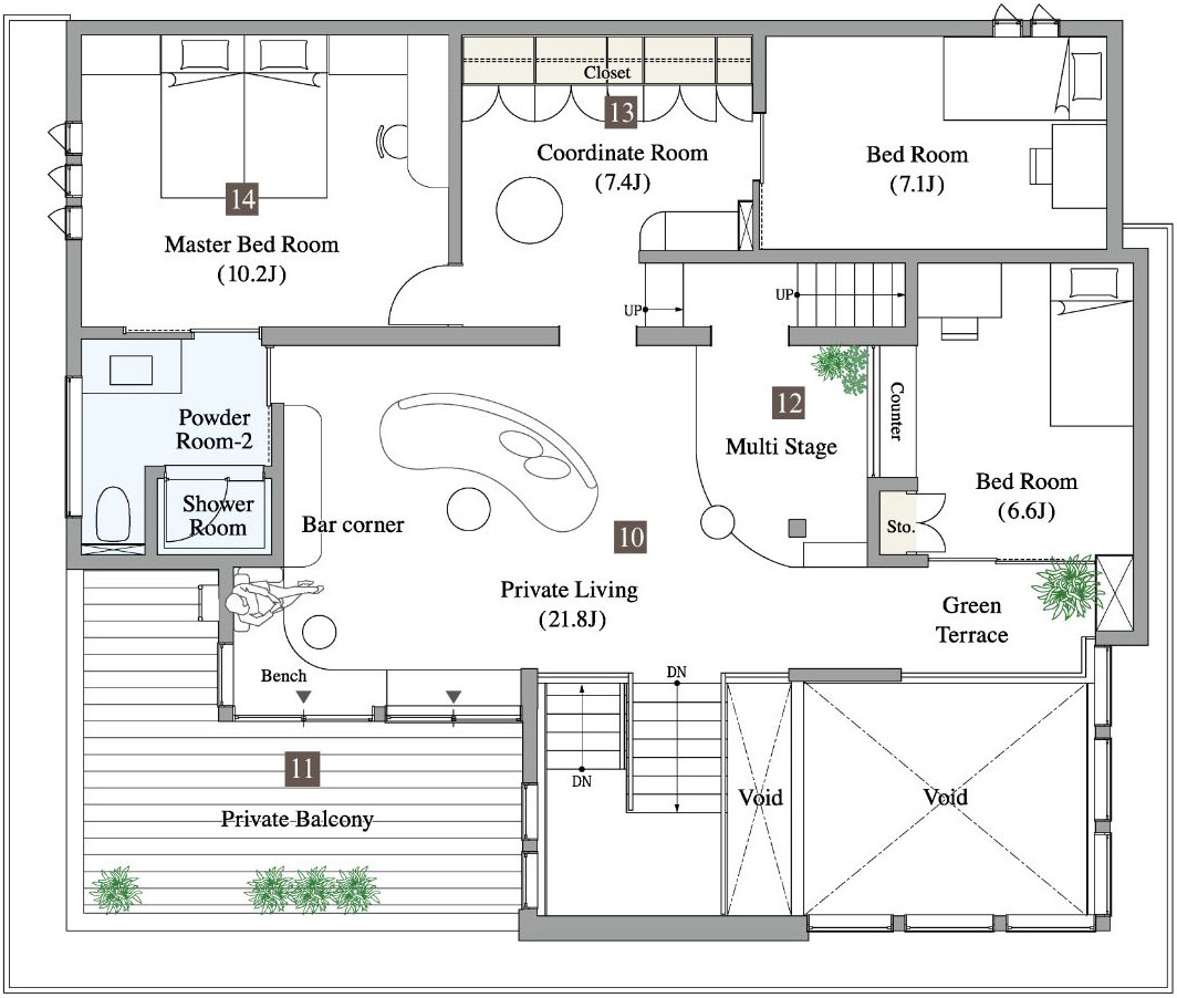
2階: 休日や夜の穏やかな時間を、思い思いに過ごすプライベートリビング
2階- 10
プライベートリビング
- 窓際のベンチでくつろいだり、バーカウンターでお酒を楽しめる第2のリビング。

- 11
プライベートバルコニー
- ベンチから段差なく続く開放的な空間。大きな屋根で天気を気にせず外を楽しめる。

- 12
マルチステージ
- ヨガをしたり、仕事をしたり、寝そべって本を読んだり、自由に過ごせるスペース。

- 13
コーディネートルーム
- 忙しい朝や帰宅の遅い時間に便利な、2way動線のパウダールームのある主寝室。

- 14
パウダールームのある主寝室
- 忙しい朝や帰宅の遅い時間に便利な、2way動線のパウダールームのある主寝室。

- 15
ソライオ&グリーンテラス
- グリーン越しに家を見渡せる気持ちのいい収納スペース。

石貼りの壁が上質な雰囲気を演出。靴の着脱に便利なベンチつき。
帰宅後すぐに手洗いができる洗面台と、お出かけの前の使用にも便利なトイレ。
段差を設けることで緩やかに仕切られ、開放的な吹抜でありつつ、くつろげる空間。
食事の場としてだけでなく、家族が集い時間を共有する住まいのハブとなる空間。
洗濯から乾燥、アイロン、収納までワンストップで行える空間。室内物干しも完備。
趣味のアウトドアグッズの収納やディスプレイができる空間。
靴をはいたまま通り抜けできる収納スペース。下足入れだけでなく、コート掛けも完備。
たっぷりのリネン収納のある空間。バスコートのある浴室で優雅なお風呂時間を。
家族の気配を感じながらも一人になれる、隠れ家のようなスペース。
窓際のベンチでくつろいだり、バーカウンターでお酒を楽しめる第2のリビング。
ベンチから段差なく続く開放的な空間。大きな屋根で天気を気にせず外を楽しめる。
ヨガをしたり、仕事をしたり、寝そべって本を読んだり、自由に過ごせるスペース。
忙しい朝や帰宅の遅い時間に便利な、2way動線のパウダールームのある主寝室。
忙しい朝や帰宅の遅い時間に便利な、2way動線のパウダールームのある主寝室。
グリーン越しに家を見渡せる気持ちのいい収納スペース。
ソライオ